Здание в центре на своей земле
| Населенный пункт | Тюмень |
|---|---|
| Район города | Калининский |
| Улица | улица Семакова |
| Номер дома | 30 |
Описание
Предлагаем к покупке отдельно стоящее административное здание в центре города. Можно использовать для получения пассивного дохода от аренды или дальнейшей перепродажи.
Без комиссии для покупателя
Основные характеристики и преимущества:
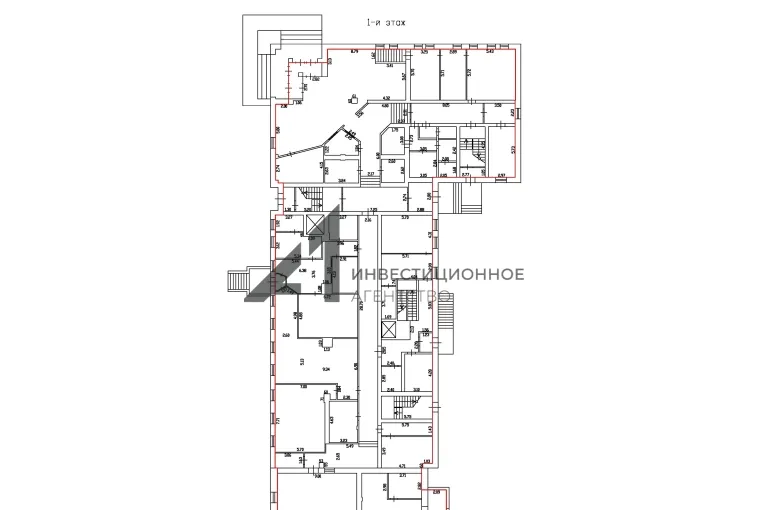
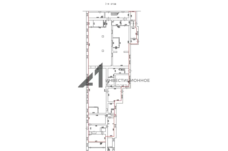
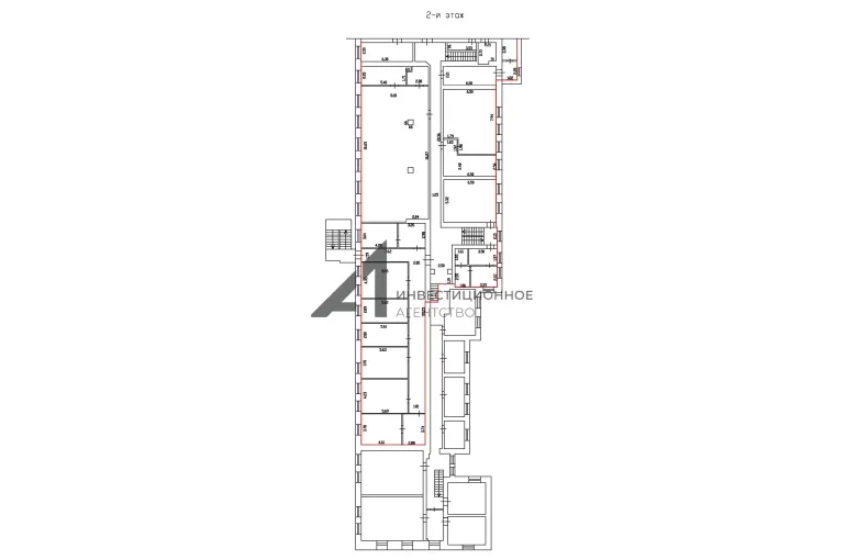
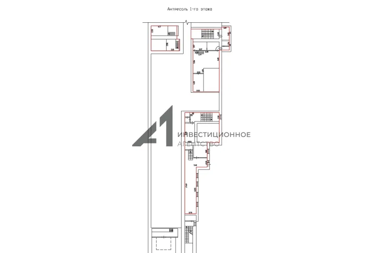
- общая площадь помещений - 5 836,1 кв.м;
- земельный участок в постоянном бессрочном пользовании, площадь 4 238 кв.м;
- здание состоит из трех блоков: 3-х этажной офисной части; 4-х этажной офисной части (с оборудованной столовой, спортивным залом с высотой потолков 4,8 м); 2-х этажный блок (высота потолков 3,3 м, свободная планировка, на первом этаже - предприятия общественного питания; на втором - предприятя досуга и спортивно-развлекательной деятельности);
- есть возможность увеличения площади на 1500 кв.м - одобренный Администрацией города проект реконструкции здания – надстройка двух этажей над двухэтажной секцией;
- во внутреннем дворе комплекса имеется парковочная зона;
- есть возможность проведения реконструкции на части площадей для организации и дальнейшей продажи апартаментов;
- в 2024 году проведен капитальный ремонт улицы Ленина;
- рядом расположено несколько корпусов ТюмГУ, церковь Михаила Архангела;
- на соседнем земельном участке 0,8 Га начинается строительство нового клубного ЖК бизнес-класса от застройщика Newton;
Возможно использование под офис крупной компании или для реализации инвестиционного проекта с высокой доходностью.
Готовы ответить на Ваши вопросы. До встречи на показе.
Подписывайтесь на наш аккаунт и получайте новости о новых объектах и изменении цен!
Возможно, вы искали:
Готовый арендный бизнес, ГАБ, ПСН, помещения свободного назначения, коммерческая недвижимость, коммерческое помещение, торговая недвижимость, продажа нежилого помещения, купить торговую площадь, помещение под торговлю, купить коммерческую недвижимость в Тюмени, продажа коммерческой недвижимости в Тюмени, купить нежилое помещение в Тюмени, инвестиции в недвижимость, вложения в недвижимость, ипотека на коммерческую недвижимость
Продажа готового арендного бизнеса, продажа коммерческой недвижимости и помещений свободного назначения: как выгодно продать и инвестировать.
Узнайте, как правильно продать коммерческое помещение или торговую недвижимость, включая нежилые помещения в Тюмени. Получите советы по продаже и вложению в объекты недвижимости, чтобы максимизировать прибыль. Оценка инвестиционных возможностей и использование ипотеки для эффективных финансовых решений при продаже объектов недвижимости.
_______________________________________
Инвестиционное агентство "Главная улица"
| Сведения о недвижимости | |
|---|---|
| ID | 456 |
| Тип здания | Административное здание |
| Тип парковки | На улице |
| Отделка помещения коммерческая | Чистовая |
| Тип коммерческой | Здание |
| Площадь, кв.м. | 5836.1 |
| Этаж | 1 |
| Этажность | 4 |
| Стоимость | 420 000 000 руб. |







































