Продажа офиса на первой линии
| Населенный пункт | Тюмень |
|---|---|
| Район города | Ленинский |
| Улица | улица Харьковская |
| Номер дома | 59а/12 |
Описание
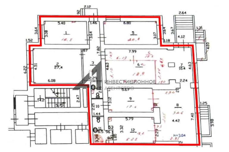
Продается нежилое помещение 127 кв.м в оживленном районе Мельникайте-Харьковская.
Без комиссии для покупателя
Основные характеристики и преимущества:
- первый этаж жилого дома;
- два отдельных входа;
- кабинетная планировка;
- помещение полностью c мебелью, есть кухня;
- парковка во дворе;
- возможно увеличить площадь до 210 кв м
Готовы ответить на Ваши вопросы. До встречи на показе.
Подписывайтесь на наш аккаунт и получайте новости о новых объектах и изменении цен!
________________________________________
Инвестиционное агентство "Главная улица"
| Сведения о недвижимости | |
|---|---|
| ID | 4579 |
| Коммунальные услуги включены | Нет |
| Возможное назначение | Офис |
| Тип здания | Жилой дом |
| Тип парковки | На улице |
| Отделка помещения коммерческая | Офисная |
| Тип коммерческой | Офисное помещение |
| Площадь, кв.м. | 127 |
| Этаж | 1 |
| Этажность | 9 |
| Стоимость | 17 690 000 руб. |









