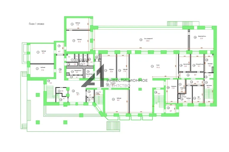
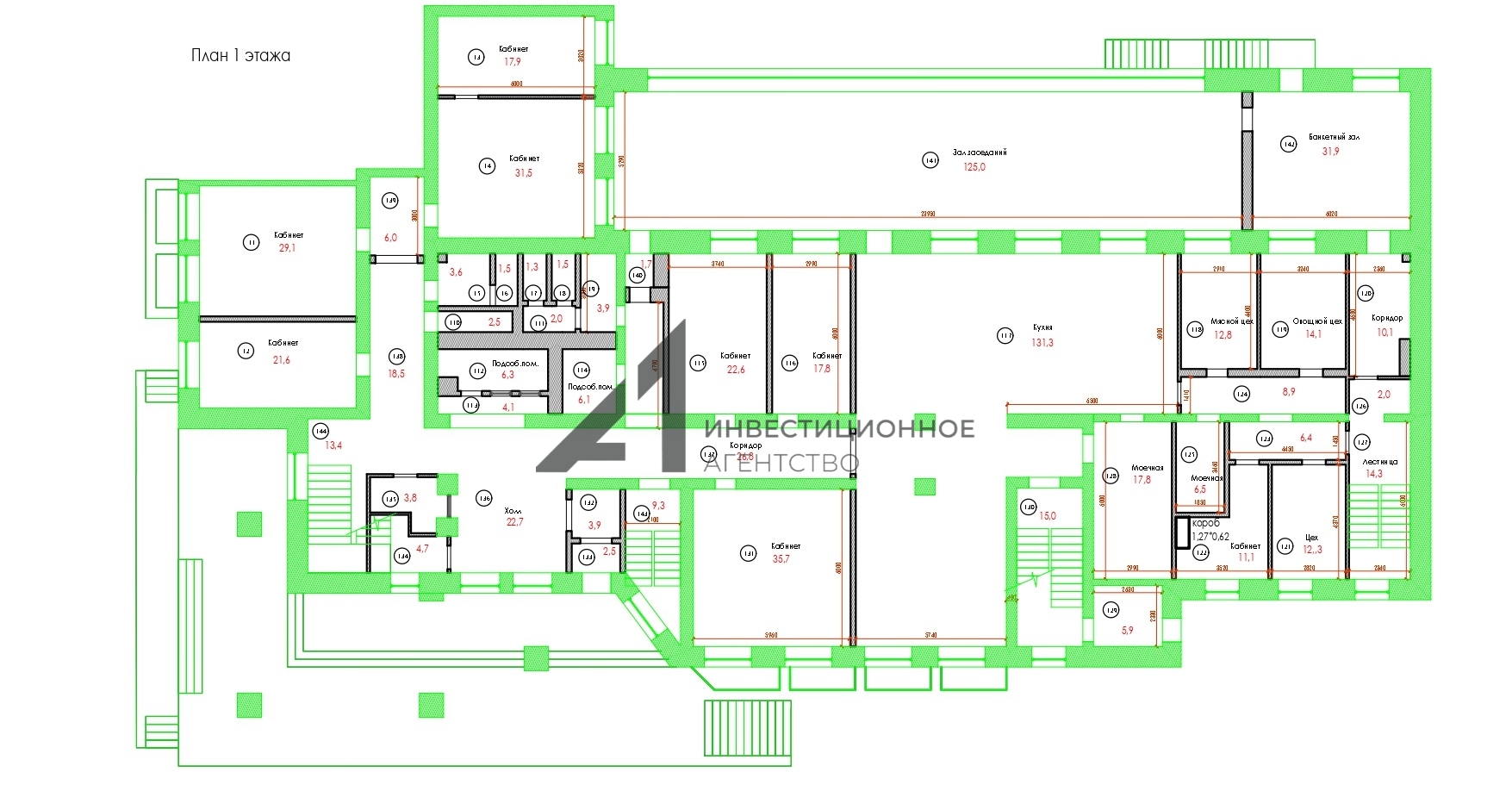
Аренда 300 м2, 1 этаж, 1 линия
| Населенный пункт | Тюмень |
|---|---|
| Улица | улица Ямская |
| Номер дома | 33 |
Описание
Предлагаем в аренду помещения в отдельно стоящем административном здании в районе Дома Обороны, на первой линии ул. Ямская.
Без комиссии для арендатора
Основные преимущества и характеристики:
- помещение в офисном центре с отдельным входом;
- несколько отдельных входов в здание, доступ 24/7;
- рядом находятся образовательные и спортивные комплексы;
- близость к набережной и центру города;
- смонтирована вытяжка;
- есть место под размещение рекламной вывески;
- парковочные места для клиентов и сотрудников;
- есть закрытая парковка, гаражи;
- можно использовать под общепит, медицину, образование, офис.
Готовы ответить на Ваши вопросы. До встречи на показе.
Подписывайтесь на наш аккаунт и получайте новости о новых объектах и изменении цен!
Возможно, вы искали:
Готовый арендный бизнес, ГАБ, ПСН, помещения свободного назначения, коммерческая недвижимость, коммерческое помещение, торговая недвижимость, продажа нежилого помещения, купить торговую площадь, помещение под торговлю, купить коммерческую недвижимость в Тюмени, продажа коммерческой недвижимости в Тюмени, купить нежилое помещение в Тюмени, инвестиции в недвижимость, вложения в недвижимость, ипотека на коммерческую недвижимость
Продажа готового арендного бизнеса, продажа коммерческой недвижимости и помещений свободного назначения: как выгодно продать и инвестировать.
Узнайте, как правильно продать коммерческое помещение или торговую недвижимость, включая нежилые помещения в Тюмени. Получите советы по продаже и вложению в объекты недвижимости, чтобы максимизировать прибыль. Оценка инвестиционных возможностей и использование ипотеки для эффективных финансовых решений при продаже объектов недвижимости.
_______________________________________
Инвестиционное агентство "Главная улица"
| Сведения о недвижимости | |
|---|---|
| ID | 5221 |
| Коммунальные услуги включены | Нет |
| Тип здания | Административное здание |
| Тип парковки | На улице |
| Отделка помещения коммерческая | Офисная |
| Тип коммерческой | Помещение под общепит |
| Площадь, кв.м. | 300 |
| Этаж | 1 |
| Этажность | 3 |
| Стоимость | 360 000 руб. |






