Аренда офиса в центре
| Населенный пункт | Тюмень |
|---|---|
| Улица | улица Республики |
| Номер дома | 42 |
Описание
ЗАКРЫТОЕ ПРЕДЛОЖЕНИЕ
Сдам в аренду помещения под офис в административном здании.
Без комиссии для арендатора
Основные характеристики и преимущества:
- объект расположен в центре города;
- помещения на первом, втором, третьем этажах;
- рядом с началом пешеходной улицы Дзержинского;
- платная парковка;
- удобная транспортная доступность;
- большое количество точек общественного питания для Ваших сотрудников.
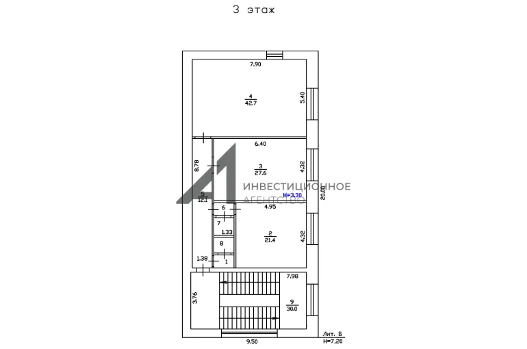
- есть возможность частичной аренды: 2ой этаж (835 или 357 кв.м.), 3 этаж (139,5 кв.м), 4 этаж (112,4 кв.м.).
- запасной выход на ул. Республики.
Готовы ответить на Ваши вопросы. До встречи на показе.
Подписывайтесь на наш аккаунт и получайте новости о новых объектах и изменении цен!
Возможно, вы искали:
Готовый арендный бизнес, ГАБ, ПСН, помещения свободного назначения, коммерческая недвижимость, коммерческое помещение, торговая недвижимость, продажа нежилого помещения, купить торговую площадь, помещение под торговлю, купить коммерческую недвижимость в Тюмени, продажа коммерческой недвижимости в Тюмени, купить нежилое помещение в Тюмени, инвестиции в недвижимость, вложения в недвижимость, ипотека на коммерческую недвижимость
Продажа готового арендного бизнеса, продажа коммерческой недвижимости и помещений свободного назначения: как выгодно продать и инвестировать.
Узнайте, как правильно продать коммерческое помещение или торговую недвижимость, включая нежилые помещения в Тюмени. Получите советы по продаже и вложению в объекты недвижимости, чтобы максимизировать прибыль. Оценка инвестиционных возможностей и использование ипотеки для эффективных финансовых решений при продаже объектов недвижимости.
_______________________________________
Инвестиционное агентство "Главная улица"
| Сведения о недвижимости | |
|---|---|
| ID | 5521 |
| Коммунальные услуги включены | Нет |
| Тип здания | Административное здание |
| Тип парковки | На улице |
| Тип коммерческой | Офисное помещение |
| Площадь, кв.м. | 1087.3 |
| Этаж | 2 |
| Этажность | 2 |
| Стоимость | 1 500 000 руб. |

















