Цоколь. Трафик, ремонт и окна
| Населенный пункт | Тюмень |
|---|---|
| Район города | Центральный |
| Улица | улица Велижанская |
| Номер дома | 68 |
Описание
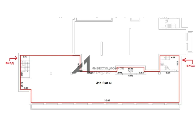
Сдам помещение с ремонтом по хорошей ставке
- густозаселенный район
- рядом строится свежий ЖК
- трафиковая улица
- сверху МАГНИТ
- два входа
- потолки 3,3 м
- оупенспейс
- санузел
- крупные открывающиеся окна
- 20 кВт электричества
Ваш бизнес заслуживает лучшего! Свяжитесь с нами прямо сейчас и забронируйте показ!"
_______________________________________
Инвестиционное агентство "Главная улица"
| Сведения о недвижимости | |
|---|---|
| ID | 6231 |
| Коммунальные услуги включены | Нет |
| Тип здания | Жилой дом |
| Тип парковки | На улице |
| Отделка помещения коммерческая | Офисная |
| Удаленность от дороги (авито) | Первая линия |
| Этаж дополнительно (авито) | Несколько этажей |
| Мощность электросети, в кВт | 20 |
| Минимальный срок сдачи, мес. | 11 |
| Арендные каникулы | Есть |
| Возможная нарезка - Площадь дополнительно | Есть |
| Виды отопления avito | Центральное |
| Отопление - коммерческая avito | Центральное |
| Тип коммерческой | Помещение свободного назначения |
| Площадь, кв.м. | 311 |
| Этаж | -1 |
| Этажность | 16 |
| Стоимость | 109 060 руб. |




