ГАБ с федералом "Монетка"
| Населенный пункт | деревня Патрушева |
|---|---|
| Район города | Калининский |
| Улица | улица Петра Ершова |
| Номер дома | 7 |
Описание
Предлагаем купить помещение с действующим федеральным арендатором "Монетка".
Без комиссии для покупателя
Основные характеристики и преимущества:
- новый ЖК, большая плотность населения;
- помещение сдано в аренду федеральному сетевому арендатору;
- договор заключен на 10 лет;
- предусмотрена оплата 5% от товарооборота - арендный поток будет стабильно увеличиваться при росте заселенности района;
- удобное расположение внутри квартала позволит привлечь покупателей из всех ЖК рядом;
- безбарьерный вход в помещение;
- оборудована зона погрузки/разгрузки.
Готовы ответить на Ваши вопросы. До встречи на показе.
Подписывайтесь на наш аккаунт и получайте новости о новых объектах и изменении цен!
Возможно, вы искали:
Готовый арендный бизнес, ГАБ, ПСН, помещения свободного назначения, коммерческая недвижимость, коммерческое помещение, торговая недвижимость, продажа нежилого помещения, купить торговую площадь, помещение под торговлю, купить коммерческую недвижимость в Тюмени, продажа коммерческой недвижимости в Тюмени, купить нежилое помещение в Тюмени, инвестиции в недвижимость, вложения в недвижимость, ипотека на коммерческую недвижимость
Продажа готового арендного бизнеса, продажа коммерческой недвижимости и помещений свободного назначения: как выгодно продать и инвестировать.
Узнайте, как правильно продать коммерческое помещение или торговую недвижимость, включая нежилые помещения в Тюмени. Получите советы по продаже и вложению в объекты недвижимости, чтобы максимизировать прибыль. Оценка инвестиционных возможностей и использование ипотеки для эффективных финансовых решений при продаже объектов недвижимости.
_______________________________________
Инвестиционное агентство "Главная улица"
| Сведения о недвижимости | |
|---|---|
| ID | 5983 |
| Возможное назначение | Магазин |
| Тип здания | Жилой дом |
| Тип парковки | На улице |
| Отделка помещения коммерческая | Чистовая |
| Удаленность от дороги (авито) | Первая линия |
| Мощность электросети, в кВт | 50 |
| Виды отопления avito | Центральное |
| Тип коммерческой | Готовый бизнес |
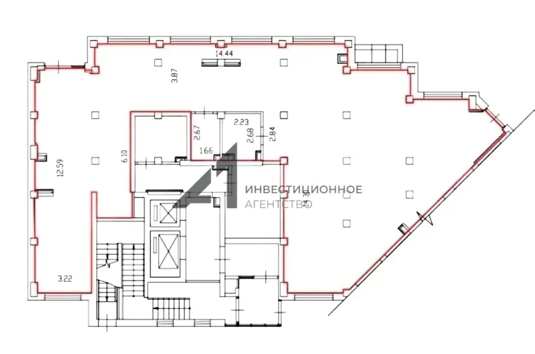
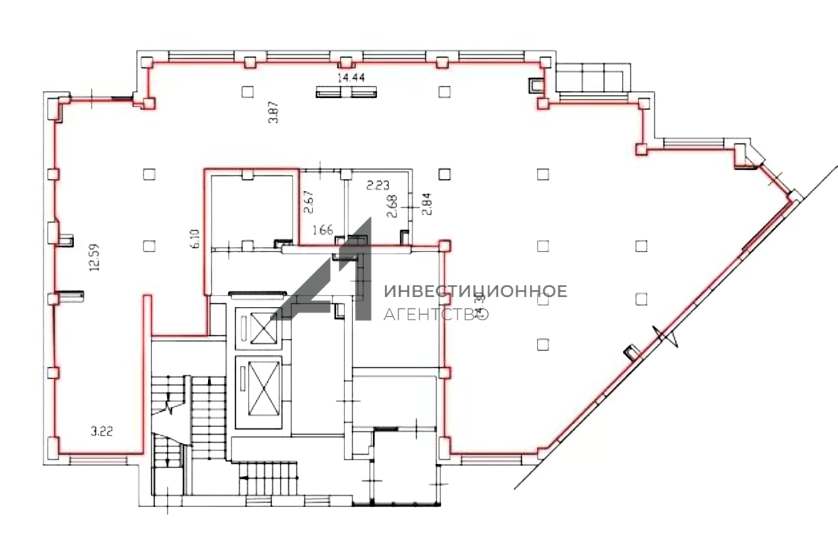
| Площадь, кв.м. | 220.2 |
| Этаж | 1 |
| Этажность | 15 |
| Стоимость | 42 000 000 руб. |





