Инвестиционный проект
| Населенный пункт | Тюмень |
|---|---|
| Район города | Ленинский |
| Улица | улица 50 лет Октября |
| Номер дома | 63к2 |
Описание
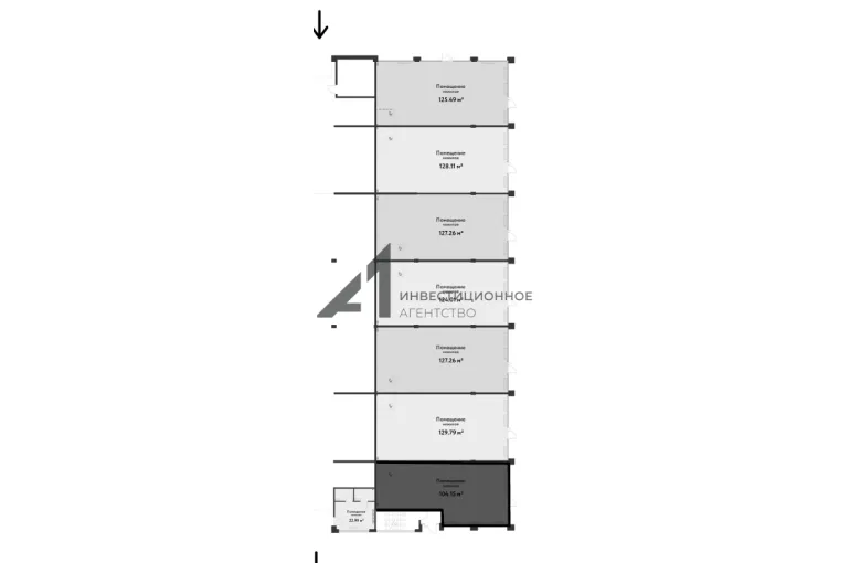
Предлагаем к покупке помещения в новостройке в центральной части города.
Без комиссии для покупателя
Основные характеристики объекта:
- продажа помещения для арендного бизнеса;
- новый престижный район "Сердце Сибири";
- площади находятся на первом этаже паркинга;
- все помещения можно объединить;
- витражные окна на фасаде;
- открытая и удобная планировка;
- возможна рассрочка;
- цена от застройщика.
Подписывайтесь на наш аккаунт и получайте новости о новых объектах и изменении цен!
________________________________________
Инвестиционное агентство "Главная улица"
| Сведения о недвижимости | |
|---|---|
| ID | 5975 |
| Тип здания | Другой |
| Тип парковки | На улице |
| Отделка помещения коммерческая | Без отделки |
| Удаленность от дороги (авито) | Первая линия |
| Арендные каникулы | Есть |
| Виды отопления avito | Центральное |
| Тип коммерческой | Торговое помещение |
| Площадь, кв.м. | 866 |
| Этаж | 1 |
| Этажность | 5 |
| Стоимость | 194 113 000 руб. |









