Ликвидное помещение для бизнеса.
| Населенный пункт | Тюмень |
|---|---|
| Улица | улица Пожарных и Спасателей |
| Номер дома | 5 |
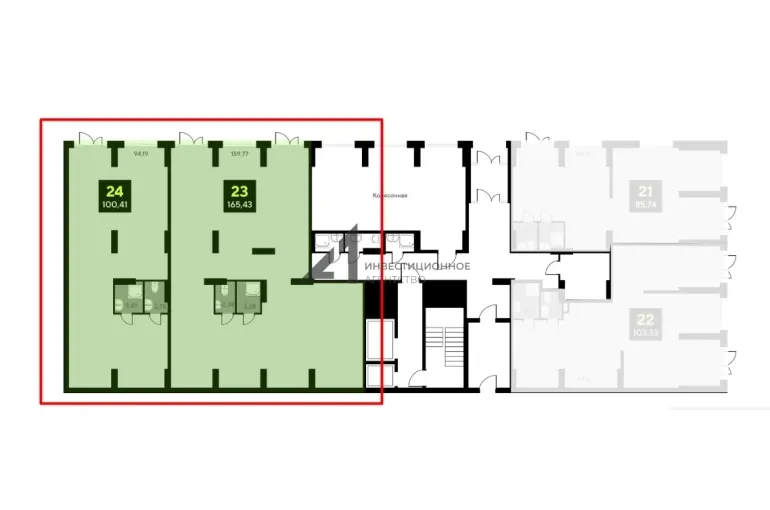
Описание
Продажа помещения для аренды или бизнеса.
- Новый перспективный район города.
- 5 -й Заречный район города.
- Удобная планировка.
- Высокие потолки.
- Витражные окна.
- Безбаръерный доступ.
- Отдельная вытяжная шахта.
- Входная группа с выходом на бульвар - это обеспечит самый большой трафик.
- Выгодная цена на этапе стройки. Срок сдачи 2025-2026 год.
Стоимость указана с НДС.
| Сведения о недвижимости | |
|---|---|
| ID | 6252 |
| Виды отопления avito | Центральное, Газовое |
| Отопление - коммерческая avito | Центральное |
| Тип коммерческой | Помещение свободного назначения, Торговое помещение, Помещение под общепит |
| Площадь, кв.м. | 265.84 |
| Этаж | 1 |
| Этажность | 19 |
| Стоимость | 51 770 000 руб. |










