Офис с отличным ремонтом
| Населенный пункт | Тюмень |
|---|---|
| Улица | улица Дружбы |
| Номер дома | 207 |
Описание
Сдам в аренду офисное помещение с новым ремонтом.
БЕЗ КОМИССИИ ДЛЯ АРЕНДАТОРА
Основные характеристики и преимущества:
- выполнен качественный ремонт с использованием дорогих материалов;
- в офисе есть все необходимые коммуникации, интернет, кондиционирование;
- большая просторная парковка как для клиентов так и для сотрудников;
- офисный блок также имеет просторные рабочие зоны, отдельные кабинеты для руководителей и переговорные комнаты;
- офис идеально подойдет для работы офисных сотрудников, а также для проведения встреч с клиентами.
Подписывайтесь на наш аккаунт и получайте новости о новых объектах и изменении цен!
Подпишитесь на наш аккаунт на Авито, чтобы быть в курсе скидок и акций
Возможно, вы искали:
Готовый арендный бизнес, ГАБ, ПСН, помещения свободного назначения, коммерческая недвижимость, коммерческое помещение, торговая недвижимость, продажа нежилого помещения, купить торговую площадь, помещение под торговлю, купить коммерческую недвижимость в Тюмени, продажа коммерческой недвижимости в Тюмени, купить нежилое помещение в Тюмени, инвестиции в недвижимость, вложения в недвижимость, ипотека на коммерческую недвижимость
Продажа готового арендного бизнеса, продажа коммерческой недвижимости и помещений свободного назначения: как выгодно продать и инвестировать.
Узнайте, как правильно продать коммерческое помещение или торговую недвижимость, включая нежилые помещения в Тюмени. Получите советы по продаже и вложению в объекты недвижимости, чтобы максимизировать прибыль. Оценка инвестиционных возможностей и использование ипотеки для эффективных финансовых решений при продаже объектов недвижимости.
_______________________________________
Инвестиционное агентство "Главная улица"
| Сведения о недвижимости | |
|---|---|
| ID | 5332 |
| Коммунальные услуги включены | Нет |
| Тип здания | Административное здание |
| Тип парковки | На улице |
| Отделка помещения коммерческая | Офисная |
| Тип коммерческой | Офисное помещение, Помещение свободного назначения, Здание, Медицинский центр |
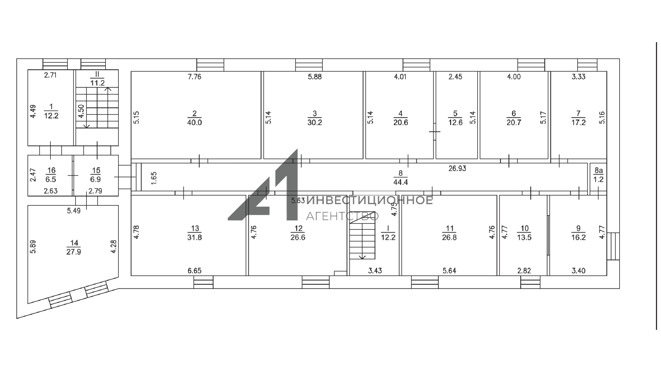
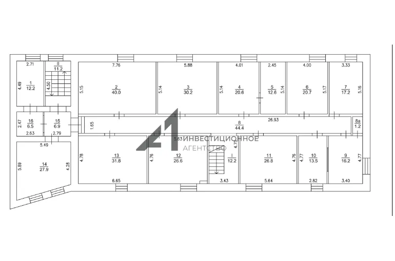
| Площадь, кв.м. | 150 |
| Этаж | 3 |
| Этажность | 3 |
| Стоимость | 150 000 руб. |





