Под доставку без посадки
| Населенный пункт | Тюмень |
|---|---|
| Улица | улица Транспортная |
| Номер дома | 106 |
Описание
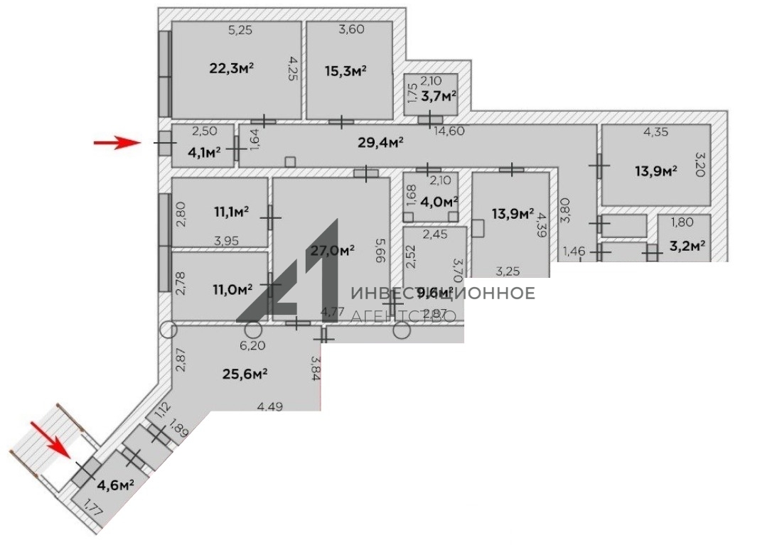
Предлагаем в аренду помещение под доставку на Московском тракте, общая площадь 199 кв.м.
Без комиссии для арендатора
Основные характеристики и преимущества:
- плотная жилая застройка;
- район сформирован и обжит;
- хороший автомобильный и пешеходный трафик;
- два входа;
- вентиляция отдельная от жилого дома;
- электрическая мощность 50 кВт;
- большие окна, хорошее естественное освещение;
Отлично подойдет под следующие виды деятельности: торговую, общепит, услуги и т.д.
Стоимость аренды: 140 000 руб. в месяц. КУ оплачиваются дополнительно.
Ждем Ваших обращений, для уточнения оставшихся вопросов.
С удовольствием и знанием дела поможем Вам в подборе помещений!
Подписывайтесь на наш аккаунт и получайте новости о новых объектах и изменении цен!
________________________________________
Инвестиционное агентство "Главная улица"
| Сведения о недвижимости | |
|---|---|
| ID | 5446 |
| Коммунальные услуги включены | Нет |
| Тип здания | Жилой дом |
| Тип парковки | На улице |
| Отделка помещения коммерческая | Чистовая |
| Виды отопления avito | Центральное |
| Тип коммерческой | Торговое помещение |
| Площадь, кв.м. | 199 |
| Этаж | 1 |
| Этажность | 6 |
| Стоимость | 130 000 руб. |









