Под доставку, заготовку.
| Населенный пункт | Тюмень |
|---|---|
| Район города | Ленинский |
| Улица | улица Республики |
| Номер дома | 250 Б |
Описание
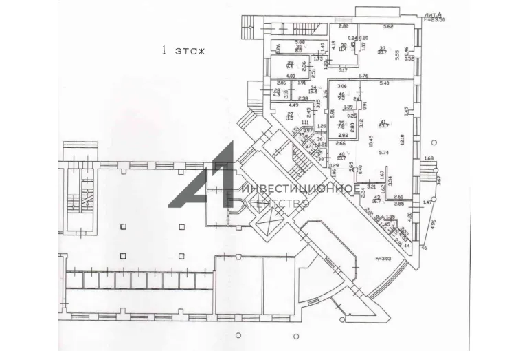
Предлагаем купить помещение на первом этаже административного здания, общая площадь: 218 кв.м.
Без комиссии для покупателя
Основные характеристики и преимущества:
- отличная транспортная развязка;
- два входа;
- половину помещения занимает "Красное и Белое", вторая половина сдается в аренду;
- хороший автомобильный трафик;
- два входа;
- мощная приточно-вытяжная вентиляция;
- электрическая мощность 30 кВт;
- большие окна, хорошее естественное освещение;
Ждем Ваших обращений, для уточнения оставшихся вопросов.
С удовольствием и знанием дела поможем Вам в подборе помещений!
Подписывайтесь на наш аккаунт и получайте новости о новых объектах и изменении цен!
________________________________________
Инвестиционное агентство "Главная улица"
| Сведения о недвижимости | |
|---|---|
| ID | 5995 |
| Коммунальные услуги включены | Нет |
| Тип здания | Административное здание |
| Тип парковки | На улице |
| Отделка помещения коммерческая | Чистовая |
| Удаленность от дороги (авито) | Первая линия |
| Мощность электросети, в кВт | 30 |
| Возможная нарезка - Площадь дополнительно | Нет |
| Виды отопления avito | Центральное |
| Тип коммерческой | Помещение свободного назначения |
| Площадь, кв.м. | 218 |
| Этаж | 1 |
| Этажность | 7 |
| Стоимость | 22 000 000 руб. |














