Помещение для бизнеса
| Населенный пункт | Тюмень |
|---|---|
| Район города | Центральный |
| Улица | улица 30 лет Победы |
| Номер дома | 60 к 3 |
Описание
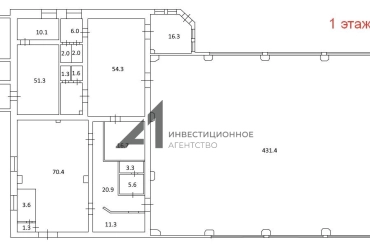
Продам нежилое помещение на первом этаже со своей парковкой.
Без комиссии для покупателя
Основные характеристики и преимущества:
- первая линия ул. 30 лет Победы;
- 1 -й этаж;
- большая парковка;
- два отдельных входа;
- продается с мебелью;
- идеально под офис, клинику, стоматологию и т.д.
Подпишитесь на наш аккаунт на Авито, чтобы быть в курсе скидок и акций
Возможно, вы искали:
Готовый арендный бизнес, ГАБ, ПСН, помещения свободного назначения, коммерческая недвижимость, коммерческое помещение, торговая недвижимость, продажа нежилого помещения, купить торговую площадь, помещение под торговлю, купить коммерческую недвижимость в Тюмени, продажа коммерческой недвижимости в Тюмени, купить нежилое помещение в Тюмени, инвестиции в недвижимость, вложения в недвижимость, ипотека на коммерческую недвижимость
Продажа готового арендного бизнеса, продажа коммерческой недвижимости и помещений свободного назначения: как выгодно продать и инвестировать.
Узнайте, как правильно продать коммерческое помещение или торговую недвижимость, включая нежилые помещения в Тюмени. Получите советы по продаже и вложению в объекты недвижимости, чтобы максимизировать прибыль. Оценка инвестиционных возможностей и использование ипотеки для эффективных финансовых решений при продаже объектов недвижимости.
Подписывайтесь на наш аккаунт и получайте новости о новых объектах и изменении цен!
________________________________________
Инвестиционное агентство "Главная улица"
| Сведения о недвижимости | |
|---|---|
| ID | 5944 |
| Возможное назначение | Медицинский центр |
| Тип здания | Жилой дом |
| Тип парковки | На улице |
| Отделка помещения коммерческая | Чистовая |
| Тип коммерческой | Офисное помещение, Медицинский центр |
| Площадь, кв.м. | 472 |
| Этаж | 1 |
| Этажность | 3 |
| Стоимость | 64 950 000 руб. |









