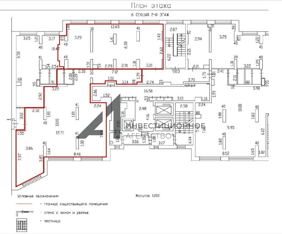
Помещение с мед. лицензией, 240м2
| Населенный пункт | Тюмень |
|---|---|
| Улица | улица Малыгина |
| Номер дома | 90 |
Описание
Продается офисное помещение в элитном ЖК "Паруса" общей площадью 240 кв.м.
Без комиссии для покупателя
Основные характеристики и преимущества:
- офис располагается в центре деловой активности города с видом на дворец бракосочетаний;
- помещение имеет два отдельных входа;
- помещение лицензировано на медицинскую и образовательную деятельность;
- есть возможность преобрести объект с действующей ООО и оборудованием;
- входная группа выходит на остановку общественного транспорта;
- товарное соседство с ТЦ "Премьер";
- высота потолков 3,3 метра;
- эл. мощность 25 кВт;
- на данный момент в помещении есть арендатор.
Подпишитесь на наш аккаунт на Авито, чтобы быть в курсе скидок и акций
Возможно, вы искали:
Готовый арендный бизнес, ГАБ, ПСН, помещения свободного назначения, коммерческая недвижимость, коммерческое помещение, торговая недвижимость, продажа нежилого помещения, купить торговую площадь, помещение под торговлю, купить коммерческую недвижимость в Тюмени, продажа коммерческой недвижимости в Тюмени, купить нежилое помещение в Тюмени, инвестиции в недвижимость, вложения в недвижимость, ипотека на коммерческую недвижимость
Продажа готового арендного бизнеса, продажа коммерческой недвижимости и помещений свободного назначения: как выгодно продать и инвестировать.
Узнайте, как правильно продать коммерческое помещение или торговую недвижимость, включая нежилые помещения в Тюмени. Получите советы по продаже и вложению в объекты недвижимости, чтобы максимизировать прибыль. Оценка инвестиционных возможностей и использование ипотеки для эффективных финансовых решений при продаже объектов недвижимости.
______________
Инвестиционное агентство "Главная улица"
| Сведения о недвижимости | |
|---|---|
| ID | 6423 |
| Тип здания | Жилой дом |
| Тип парковки | На улице |
| Отделка помещения коммерческая | Чистовая |
| Отопление - коммерческая avito | Центральное |
| Тип коммерческой | Офисное помещение |
| Площадь, кв.м. | 240 |
| Этаж | 2 |
| Этажность | 25 |
| Стоимость | 35 300 000 руб. |



























