Аренда рядом с федералом
| Населенный пункт | Тюмень |
|---|---|
| Улица | улица Николая Чаплина |
| Номер дома | 43 |
Описание
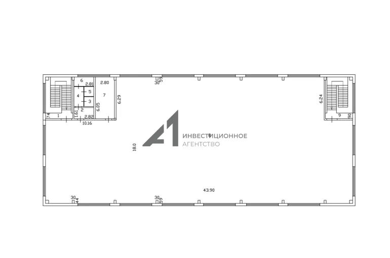
Сдам в аренду помещения на 2м этаже административного здания площадью 752 кв.м.
Без комиссии для арендатора
Основные характеристики и преимущества:
- есть возможность установки грузового лифта
- здание расположено на первой линии;
- удобные подъездные пути, вдоль здания есть проезд на другую улицу;
- остановка возле здания;
- парковочные места у центрального входа и вдоль здания;
- высота потолка в коньке - 6м, по краям 4 м;
- зона погрузки-выгрузки;
- на первом этаже размещен продуктовый магазин "Магнит", "Красно Белое" аптека Апрель ;
- коммунальные платежи оплачиваются отдельно;
- возможна аренда площади меньшего размера.
Готовы ответить на Ваши вопросы. До встречи на показе.
Подписывайтесь на наш аккаунт и получайте новости о новых объектах и изменении цен!
Подпишитесь на наш аккаунт на Авито, чтобы быть в курсе скидок и акций
Возможно, вы искали:
Готовый арендный бизнес, ГАБ, ПСН, помещения свободного назначения, коммерческая недвижимость, коммерческое помещение, торговая недвижимость, продажа нежилого помещения, купить торговую площадь, помещение под торговлю, купить коммерческую недвижимость в Тюмени, продажа коммерческой недвижимости в Тюмени, купить нежилое помещение в Тюмени, инвестиции в недвижимость, вложения в недвижимость, ипотека на коммерческую недвижимость
Продажа готового арендного бизнеса, продажа коммерческой недвижимости и помещений свободного назначения: как выгодно продать и инвестировать.
Узнайте, как правильно продать коммерческое помещение или торговую недвижимость, включая нежилые помещения в Тюмени. Получите советы по продаже и вложению в объекты недвижимости, чтобы максимизировать прибыль. Оценка инвестиционных возможностей и использование ипотеки для эффективных финансовых решений при продаже объектов недвижимости.
_______________________________________
Инвестиционное агентство "Главная улица"
| Сведения о недвижимости | |
|---|---|
| ID | 4980 |
| Коммунальные услуги включены | Нет |
| Тип здания | Административное здание |
| Тип парковки | На улице |
| Отделка помещения коммерческая | Офисная |
| Тип коммерческой | Помещение свободного назначения, Торговое помещение |
| Площадь, кв.м. | 750 |
| Этаж | 2 |
| Этажность | 2 |
| Стоимость | 375 000 руб. |






