Швейный цех в аренду
| Населенный пункт | Тюмень |
|---|---|
| Район города | Восточный |
| Улица | улица Пермякова |
| Номер дома | 74/3 |
Описание
Сдам в аренду коммерческую площадь для размещения швейного цеха с оборудованием.
БЕЗ КОМИССИИ ДЛЯ АРЕНДАТОРА
Основные характеристики и преимущества помещения:
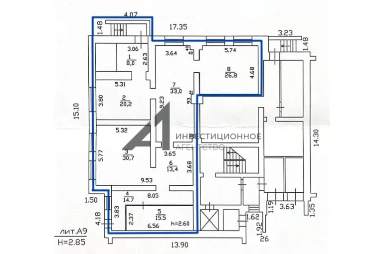
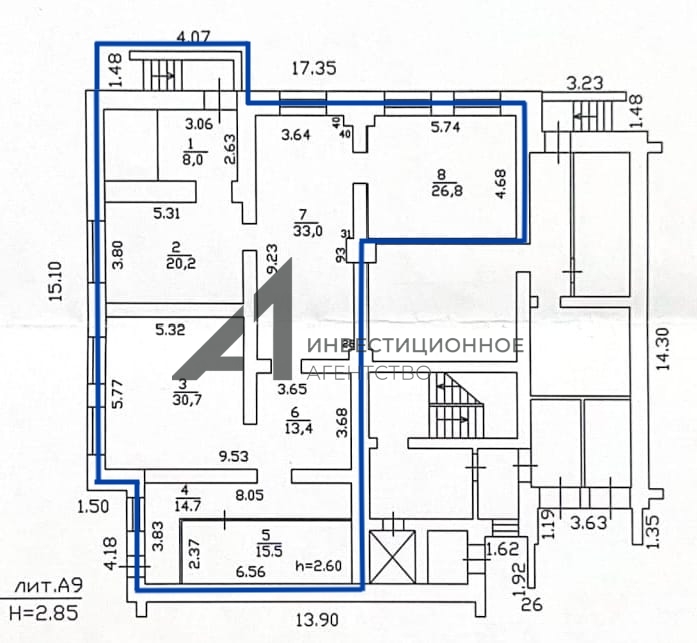
- площадь 162 кв.м;
- швейное оборудование на 3 рабочих места, закройщик, спец машины;
- цокольный этаж с окнами;
- отдельный вход с улицы;
- хороший светлый чистый ремонт;
- кабинетная планировка.
Готовы ответить на Ваши вопросы. До встречи на показе.
Подписывайтесь на наш аккаунт и получайте новости о новых объектах и изменении цен!
________________________________________
Инвестиционное агентство "Главная улица"
| Сведения о недвижимости | |
|---|---|
| ID | 5716 |
| Коммунальные услуги включены | Нет |
| Возможное назначение | Ателье одежды |
| Тип здания | Жилой дом |
| Тип парковки | На улице |
| Отделка помещения коммерческая | Чистовая |
| Удаленность от дороги (авито) | Первая линия |
| Мощность электросети, в кВт | 15 |
| Тип коммерческой | Производственное помещение |
| Площадь, кв.м. | 162 |
| Этаж | -1 |
| Этажность | 8 |
| Стоимость | 150 000 руб. |













