Продам офис на бульваре Гондатти
| Населенный пункт | Тюмень |
|---|---|
| Район города | Восточный |
| Улица | улица Николая Гондатти |
| Номер дома | 3/2 |
Описание
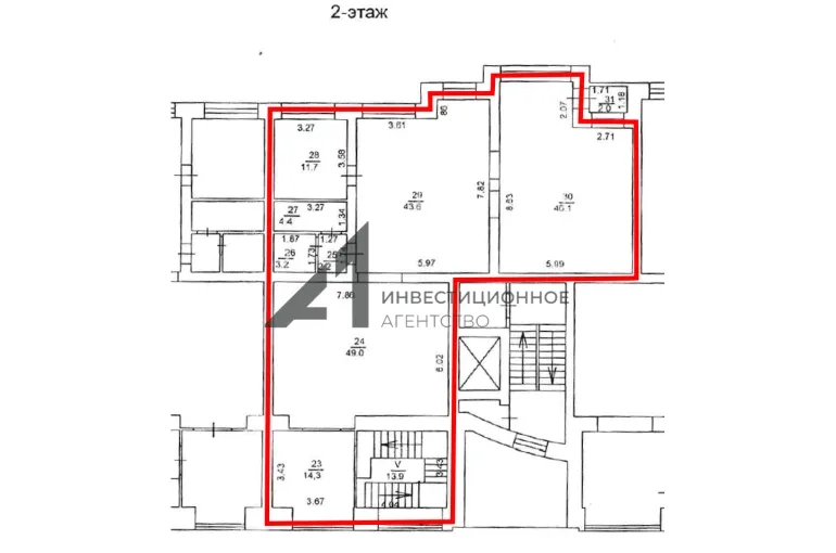
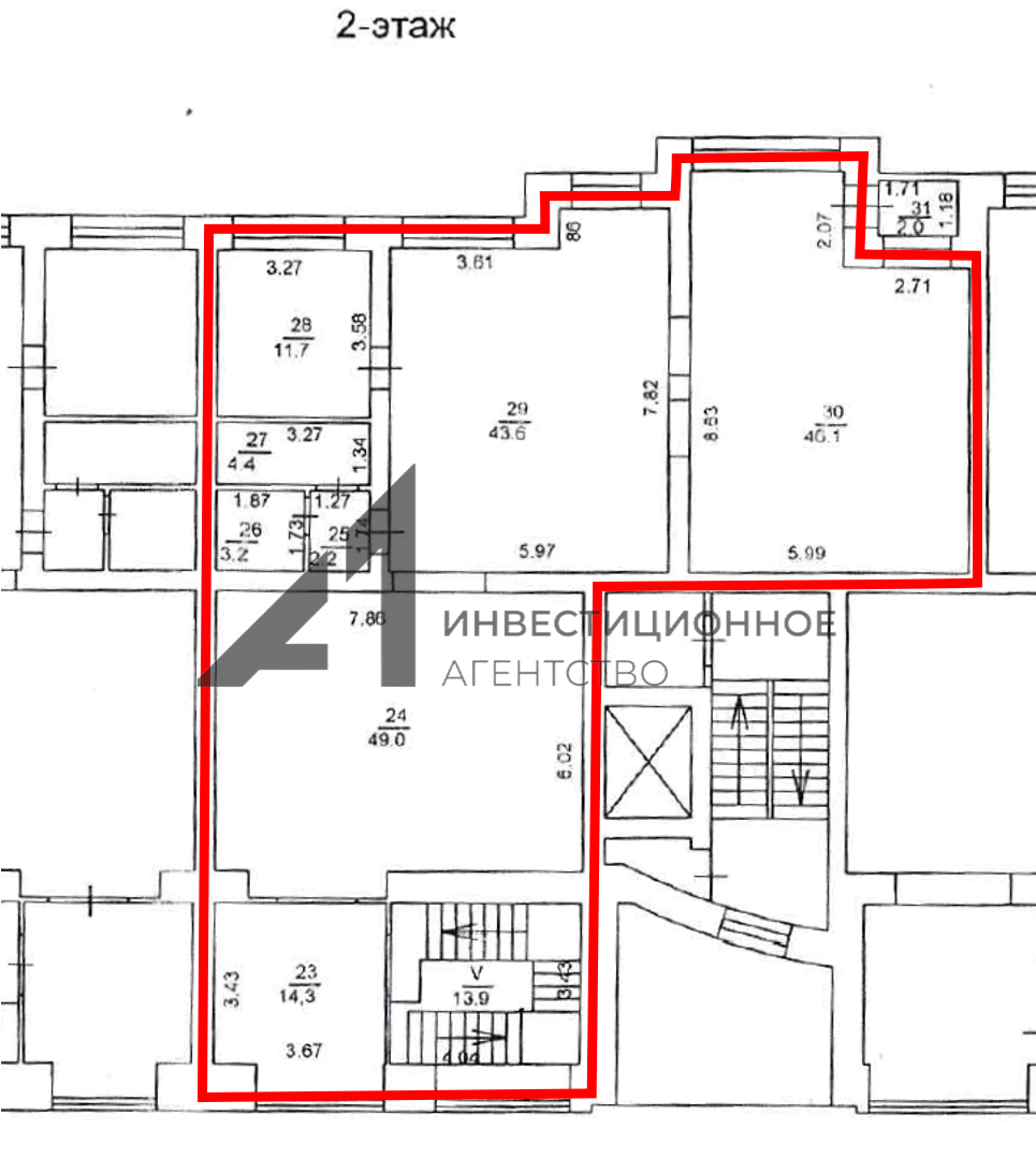
Продам коммерческое помещение на 2 этаже.
Без комиссии для покупателя
Основные характеристики и преимущества:
- отличная локация - пешеходный бульвар ул. Н. Гондатти;
- высокая плотность населения обесчетит приток клиентов;
- общая площадь помещения - 174,5 кв.м;
- выполнен ремонт;
- привлекательная стоимость покупки 1 кв.м - всего 80 тыс. руб;
- отдельный вход, доступ 24/7;
- в настоящее время помещение сдано в аренду;
- можно рассматривать проект как получение пассивного дохода от арендатора, либо использование под офис собственной компании.
Готовы ответить на Ваши вопросы. До встречи на показе!
Подписывайтесь на наш аккаунт и получайте новости о новых объектах и изменении цен!
_______________________________________
Инвестиционное агентство "Главная улица"
| Сведения о недвижимости | |
|---|---|
| ID | 4829 |
| Возможное назначение | Бытовые услуги |
| Тип здания | встроенное помещение |
| Тип парковки | На улице |
| Отделка помещения коммерческая | Чистовая |
| Виды отопления avito | Центральное |
| Тип коммерческой | Готовый бизнес |
| Площадь, кв.м. | 174.5 |
| Этаж | 2 |
| Этажность | 2 |
| Стоимость | 13 960 000 руб. |








