Продам помещение на трафике
| Населенный пункт | Тюмень |
|---|---|
| Район города | Восточный |
| Улица | улица Николая Федорова |
| Номер дома | 12 |
Описание
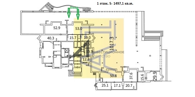
Продам универсальное помещение 1497,1 кв.м. на первой линии по ул. Федорова.
Без комиссии для покупателя
Основные характеристики и преимущества:
- потенциал арендного потока от 1,2 млн ежемесячно;
- отличный автомобильный и пешеходный трафик;
- район с плотной застройкой и заселением;
- покупателю также передается цокольное помещение, площадью 810 кв.м. в качестве бонуса, с возможностью сделать отдельную входную группу;
- объект разделен и сдан в долгосрочную аренду под разные виды бизнеса;
- 150 кВт эл. мощности;
- высота потолков первого этажа 3.5 м, цоколь - 2.8 метра;
- рядом с помещением собственная парковка;
- узаконен проем для погрузки-выгрузки товара со двора дома.
Цена продажи: 150 000 000 рублей. Аргументированный торг в формате переговоров.
Ждем Ваших обращений, для уточнения оставшихся вопросов.
Подписывайтесь на наш аккаунт и получайте новости о новых объектах и изменении цен!
________________________________________
Инвестиционное агентство "Главная улица"
| Сведения о недвижимости | |
|---|---|
| ID | 3289 |
| Тип здания | встроенное помещение |
| Тип парковки | На улице |
| Отделка помещения коммерческая | Чистовая |
| Тип коммерческой | Готовый бизнес |
| Площадь, кв.м. | 1497.1 |
| Этаж | 1 |
| Этажность | 9 |
| Стоимость | 150 000 000 руб. |


















