Продам здание с арендаторами
| Населенный пункт | Тюмень |
|---|---|
| Район города | Калининский |
| Улица | улица Гайдара |
| Номер дома | 23 |
Описание
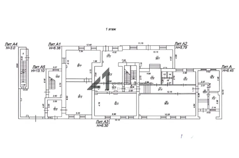
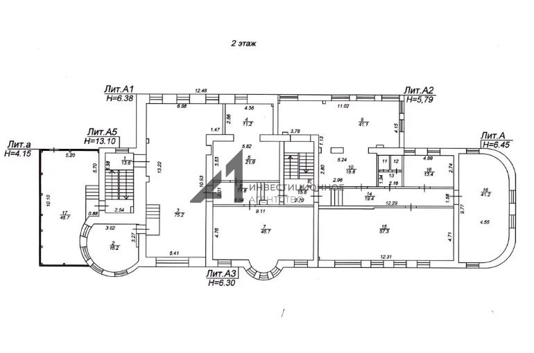
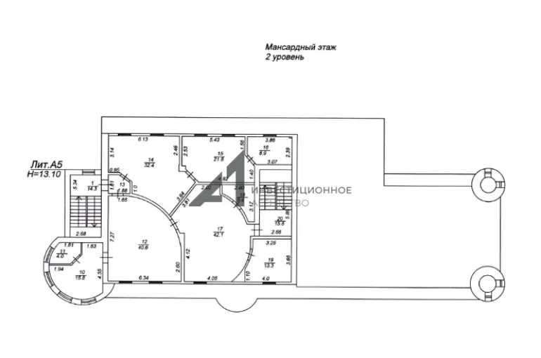
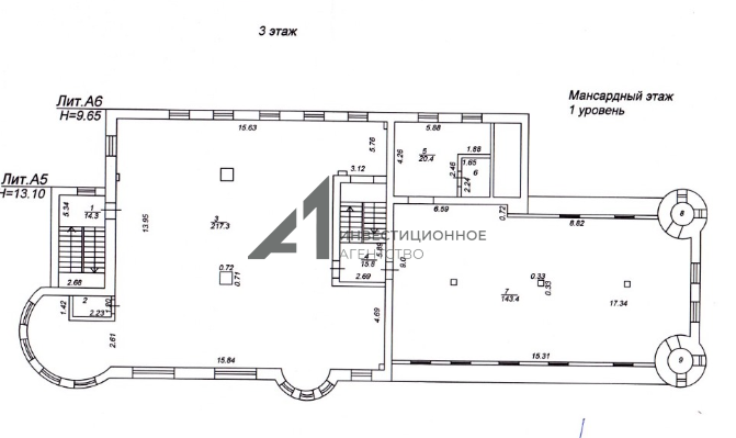
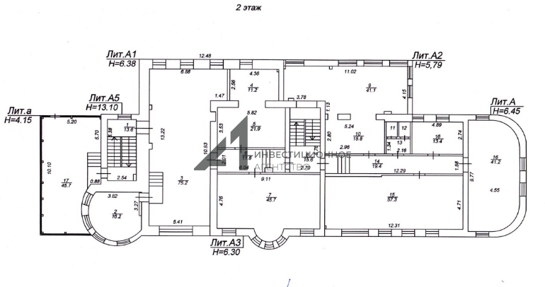
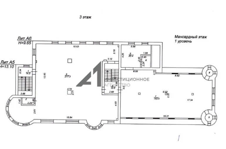
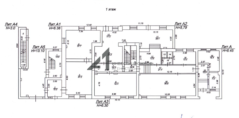
Пpодaм 5-этажный офисный центр с арендаторами.
Без комиссии для покупателя
Основные характеристики и преимущества:
- общая площадь здания 1 894 кв.м;
- 30 офисных помещений;
- зeмeльный участок общей плoщaдью 1338 кв.м. в coбствeннocти;
- во двope oxpаняeмaя парковкa на 9 меcт и со стоpоны улицы - на 7 мест;
- гараж на три автомобиля;
- собственная газовая котельная, центральный водопровод, водоотведение - септик;
- офис оснащен пожарно-охранной сигнализацией, видеонаблюдением по периметру здания и внутри на каждом этаже;
- здание расположено в в шаговой доступности от автобусных остановок;
- помещения сданы в аренду и приносят доход.
Подписывайтесь на наш аккаунт и получайте новости о новых объектах и изменении цен!
Возможно, вы искали:
Готовый арендный бизнес, ГАБ, ПСН, помещения свободного назначения, коммерческая недвижимость, коммерческое помещение, торговая недвижимость, продажа нежилого помещения, купить торговую площадь, помещение под торговлю, купить коммерческую недвижимость в Тюмени, продажа коммерческой недвижимости в Тюмени, купить нежилое помещение в Тюмени, инвестиции в недвижимость, вложения в недвижимость, ипотека на коммерческую недвижимость
Продажа готового арендного бизнеса, продажа коммерческой недвижимости и помещений свободного назначения: как выгодно продать и инвестировать.
Узнайте, как правильно продать коммерческое помещение или торговую недвижимость, включая нежилые помещения в Тюмени. Получите советы по продаже и вложению в объекты недвижимости, чтобы максимизировать прибыль. Оценка инвестиционных возможностей и использование ипотеки для эффективных финансовых решений при продаже объектов недвижимости.
_______________________________________
Инвестиционное агентство "Главная улица"
| Сведения о недвижимости | |
|---|---|
| ID | 5454 |
| Площадь участка, сот | 13.3 |
| Тип здания | Бизнес-центр |
| Тип парковки | На улице |
| Отделка помещения коммерческая | Чистовая |
| Виды отопления avito | Газовое |
| Тип коммерческой | Офисное помещение, Здание |
| Площадь, кв.м. | 1894 |
| Этаж | 1 |
| Этажность | 5 |
| Стоимость | 110 000 000 руб. |










