Продажа коммерческого помещения на ул. Ямской
| Населенный пункт | Тюмень |
|---|---|
| Улица | улица Ямская |
| Номер дома | 122 |
Описание
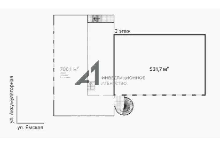
Продам помещение на 1 этаже двухэтажного отдельно стоящего здания общей площадью 531,7 м² на ул. Ямской
БЕЗ КОМИССИИ ДЛЯ ПОКУПАТЕЛЯ
Основные характеристики и преимущества:
Якорный арендатор — семейное кафе «АндерСон»
- Площадь всего здания — 2 330 м²
- Высокие потолки
- Витражные окна
- Парковка у здания
- Проект «Парковый» находится на оживленном перекрестке района Дом Обороны
- Улица Ямская — одна из главных транспортных артерий по направлению в аэропорт
- Через дорогу — самый крупный в городе экопарк «Затюменский »
Подписывайтесь на наш аккаунт и получайте новости о новых объектах и изменении цен!
________________________________________
Инвестиционное агентство «Главная улица»
| Сведения о недвижимости | |
|---|---|
| ID | 5104 |
| Тип коммерческой | Помещение свободного назначения |
| Площадь, кв.м. | 531.7 |
| Этаж | 2 |
| Стоимость | 58 490 000 руб. |


