Продажа офиса на Широтной
| Населенный пункт | Тюмень |
|---|---|
| Район города | Ленинский |
| Улица | улица Широтная |
| Номер дома | 29/17 |
Описание
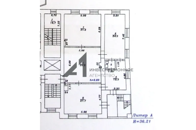
Продам офисное помещение с отдельным входом на Широтной 29
Без комиссии для покупателя
Основные характеристики и преимущества:
- общая площадь 134,5 кв м;
- четыре отдельных кабинета, холл, небольшая кухня;
- два сан,узла;
- во дворе закрытая парковка;
- в шаговой доступности парк, озеро, ТЦ "Фаворит", "Кристалл", "Южный", гостиница "Грин Хаус";
- подойдет под офис, торговлю, предоставление услуг и прочее.
Подписывайтесь на наш аккаунт и получайте новости о новых объектах и изменении цен!
________________________________________
Инвестиционное агентство "Главная улица"
| Сведения о недвижимости | |
|---|---|
| ID | 5330 |
| Возможное назначение | Офис |
| Тип здания | встроенное помещение |
| Тип парковки | На улице |
| Отделка помещения коммерческая | Офисная |
| Удаленность от дороги (авито) | Вторая линия и дальше |
| Мощность электросети, в кВт | 15 |
| Арендные каникулы | Есть |
| Виды отопления avito | Центральное |
| Отопление - коммерческая avito | Центральное |
| Тип коммерческой | Офисное помещение |
| Площадь, кв.м. | 134.5 |
| Этаж | 2 |
| Этажность | 2 |
| Стоимость | 16 990 000 руб. |



















