Склад / База/ Цех с Офисом
| Населенный пункт | Тюмень |
|---|---|
| Улица | улица Дружбы |
| Номер дома | 207 |
Описание
*Сдаётся в аренду современное помещение под складские или производственные задачи.*
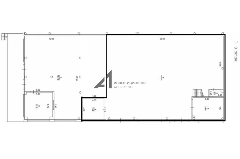
* *Площадь:* 492 кв.м. Свободная планировка.
* Электрическая мощность 100 киловатт
* *Главные преимущества:*
* *Собственный пандус:* Удобная и быстрая разгрузка/погрузка любого автотранспорта.
* *2 вида ворот:*
* Ворота 1: Высота 2.9 м, Ширина 2.8 м – под стандартные фуры.
* Ворота 2: Высота 2.6 м, Ширина 3.4 м – для негабаритных или низких грузов, спецтехники.
* *Высота потолков:* До 7 метров! Минимальная высота под конструкциями – 5.5 м. Максимальная эффективность использования пространства (многоярусные стеллажи, высокое оборудование).
* *Инфраструктура:* В помещении предусмотрено отдельное офисное помещение для административного персонала.
* *Назначение:* Идеально для организации склада (логистика, опт), производственного цеха, сервисного центра, дистрибьюции.
Возможно, вы искали:
Готовый арендный бизнес, ГАБ, ПСН, помещения свободного назначения, коммерческая недвижимость, коммерческое помещение, торговая недвижимость, продажа нежилого помещения, купить торговую площадь, помещение под торговлю, купить коммерческую недвижимость в Тюмени, продажа коммерческой недвижимости в Тюмени, купить нежилое помещение в Тюмени, инвестиции в недвижимость, вложения в недвижимость, ипотека на коммерческую недвижимость
Продажа готового арендного бизнеса, продажа коммерческой недвижимости и помещений свободного назначения: как выгодно продать и инвестировать.
Узнайте, как правильно продать коммерческое помещение или торговую недвижимость, включая нежилые помещения в Тюмени. Получите советы по продаже и вложению в объекты недвижимости, чтобы максимизировать прибыль. Оценка инвестиционных возможностей и использование ипотеки для эффективных финансовых решений при продаже объектов недвижимости.
________________________________________
Инвестиционное агентство "Главная улица"
| Сведения о недвижимости | |
|---|---|
| ID | 6281 |
| Коммунальные услуги включены | Нет |
| Тип парковки | На улице |
| Отделка помещения коммерческая | Чистовая |
| Тип коммерческой | Производственное помещение, Складское помещение, Помещения свободного назначения, Склад |
| Площадь, кв.м. | 555.68 |
| Этаж | 1 |
| Этажность | 1 |
| Стоимость | 370 560 руб. |










