В центре на 1 линии
| Населенный пункт | Тюмень |
|---|---|
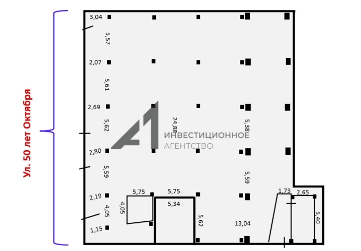
| Улица | улица 50 лет Октября |
| Номер дома | 12/1 |
Описание
Предлагаем ТОПовое помещения в центре города под общепит, торговлю.
Без комиссии для арендатора
Основные характеристики и преимущества:
- первая линия,1 этаж в деловом центре города;
- высота потолков до 4 метров;
- планировка свободная, несущих перегородок внутри нет, огромный набор вариантов зонирования пространства;
- система вентиляции и кондиционирования, центральное водоснабжение, канализация, электричество;
- собственное отопление с возможностью включения и выключения при необходимости;
- безопасность: система видеонаблюдения, пожарная сигнализация, система пожаротушения водяная, огнетушители.
- по соседству расположены офисы компаний Газпромнефть, Schlumberger, СИБУР, РОСНЕФТЬ, 2ГИС, торговый центр с топовыми сетевыми арендаторами, отель крупнейшей международной сети Accor - «MERCURE ТЮМЕНЬ ЦЕНТР».
Готовы ответить на Ваши вопросы. До встречи на показе.
Подписывайтесь на наш аккаунт и получайте новости о новых объектах и изменении цен!
Возможно, вы искали:
Готовый арендный бизнес, ГАБ, ПСН, помещения свободного назначения, коммерческая недвижимость, коммерческое помещение, торговая недвижимость, продажа нежилого помещения, купить торговую площадь, помещение под торговлю, купить коммерческую недвижимость в Тюмени, продажа коммерческой недвижимости в Тюмени, купить нежилое помещение в Тюмени, инвестиции в недвижимость, вложения в недвижимость, ипотека на коммерческую недвижимость
Продажа готового арендного бизнеса, продажа коммерческой недвижимости и помещений свободного назначения: как выгодно продать и инвестировать.
Узнайте, как правильно продать коммерческое помещение или торговую недвижимость, включая нежилые помещения в Тюмени. Получите советы по продаже и вложению в объекты недвижимости, чтобы максимизировать прибыль. Оценка инвестиционных возможностей и использование ипотеки для эффективных финансовых решений при продаже объектов недвижимости.
_______________________________________
Инвестиционное агентство "Главная улица"
| Сведения о недвижимости | |
|---|---|
| ID | 5318 |
| Коммунальные услуги включены | Да |
| Тип здания | отдельно стоящее здание |
| Тип парковки | На улице |
| Отделка помещения коммерческая | Офисная |
| Тип коммерческой | Помещение под общепит |
| Площадь, кв.м. | 600 |
| Этаж | 1 |
| Этажность | 5 |
| Стоимость | 1 200 000 руб. |










